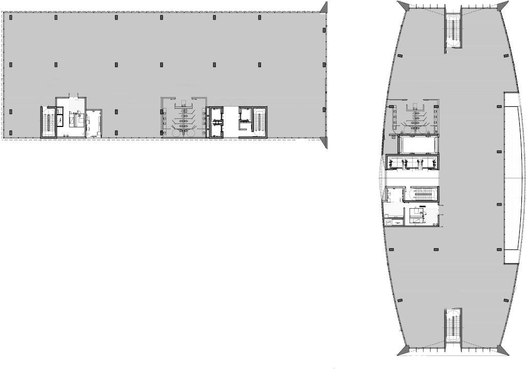
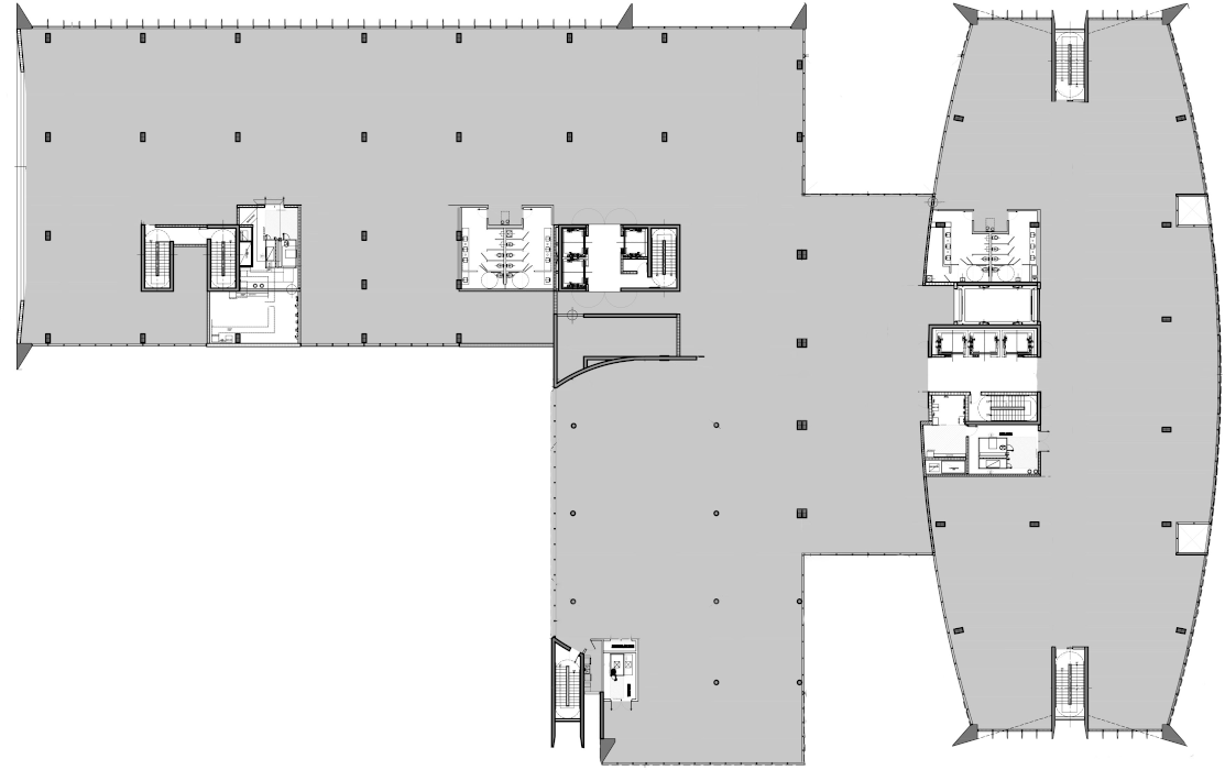
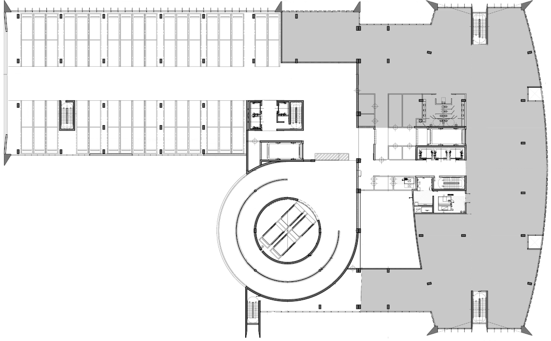
Discover a new point of view at Dupont Registry Tower with flexible spaces designed to promote innovation. On each level, expansive, column-free areas create a flexible floor plates that offer complete customization for office suites while floor to ceiling glass provides a variety of unique views. Each office space promotes an incomparable working experience that is rooted in sophistication, design, and technology.
